El distrito de Kronsberg, en Hannover, Alemania, nace de la necesidad de celebraren dicho lugar la EXPO 2000 con la temática “Humanidad, Naturaleza y Tecnología”. Representa uno de los programas urbanos más amplio y avanzado, en cuanto a eco-barrios, en Europa. Se trata de un compendio entre ecología, diseño de espacios habitables de calidad y espacios abiertos semi-naturales.
El proyecto se desarrolla en dos fases, la de planificación y la de construcción, durante un periodo de más de 12 años. Durante la primera fase, se procesan las principales decisiones estratégicas y conceptos para el nuevo barrio de Kronsberg, demandándose por parte del ayuntamiento de Hannover concursos de diseño de los diversos aspectos que se contemplaban bajo el espíritu del nuevo desarrollo sostenible. Esta primera fase planteó sectores de planificación y la preparación de medidas para la construcción. En la segunda fase se intenta aunar todos estos elementos y convertirlos en una realidad construida.
El proyecto fue ideado en 1994, pensado desde la intención de dar alojamiento a la nueva zona de la EXPO y a su vez preservar el campo con sus valores intrínsecos, mediante la ayuda del plan un de paisaje. A su vez, se resolvía la escasez de viviendas existente en 1990 en la ciudad de Hannover. Uno de sus principios es el crear las zonas residenciales entorno a las rutas de transporte público, así pues se conciben 3.000 viviendas, habitadas por unas 6.600 personas, y con 3.000 puestos de trabajo en las cercanías, en una extensión de 140 hectáreas.
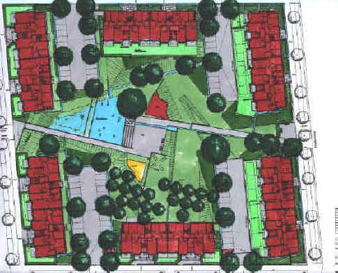
El nuevo distrito está situado frente a la colina de Kronsberg, junto la nueva línea de tranvía, con orientación norte-sur. El nuevo distrito se distribuye en barrios con identidad distintiva propia, cada uno de los cuales se distribuye alrededor de un parque vecinal y se encuentra rodeado de corredores verdes.
El diseño se apoya siempre en una estructura reticular, donde aparecen tipologías constructivas diversas, pero siempre sujetas a un marco. Es de primordial importancia en la calidad del paisaje urbano la planificación de las alturas y volúmenes de los cuerpos edificados, construyéndose todas las parcelas en esquina, y consiguiendo una alta densidad utilizando el mínimo suelo. Se consigue, pues, una armonía en el lugar mediante la planificación del espacio viario, espacio construido y espacio abierto sujeto a la retícula.
La estructura del desarrollo urbano sigue el principio de reducir altura y densidad a medida que se aproxima al distrito rural. Las zonas de mayor densidad están constituidas por edificios compactos de 4 o 5 alturas, bajando paulatinamente a 3 alturas, hasta llegar a las casas-terraza de la zona de baja densidad.
Todos los elementos de infraestructura pública se planificaron desde el principio de forma que estuviesen construidos tan pronto como fuese posible. El distrito se conecta con el centro de la ciudad mediante una nueva línea de tranvía, posee tres paradas, dispuestas de forma que los habitantes no tengan que andar más de 600 metros para acceder a estos en ningún caso. En las calles residenciales no se permite el tráfico denso, mediante secciones viales estrechas, límites de velocidad de 30 km/h, etc. Las bolsas de aparcamientos se organizan mediante pequeñas áreas y un tercio de estas se encuentran enterradas. Existe una densa red de caminos peatonales, tanto urbanos como rurales, que se convierten en una atractiva alternativa para el peatón, primando el transporte público sobre el transporte motorizado privado. En ningún momento se olvida la accesibilidad, ni siquiera en los espacios abiertos.
La nueva zona residencial, complementada mediante el sector comercial y de servicios, y contando con el campo limítrofe nos da una unidad espacial urbana. El terciario se desarrolla a lo largo de la línea del tranvía, concentrándose en una plaza, centro neurálgico del barrio, donde podemos encontrar el centro médico, sede de la comunidad, centro de arte y una iglesia. Reutilizándose así el espacio expositivo de la plaza y, mediante oficinas, los pabellones situados en la zona oriental. A la hora de construir las viviendas, el promotor, anteriormente a adquirir el terreno debía contratar el proyecto a un arquitecto, presentarlo frente al Consejo de Kronsberg, y si este era aceptado, se le permitía hacer la compra del terreno con el compromiso de construirlo.
El desarrollo urbano fue precedido de un diálogo interdisciplinario entre Urbanistas y Servicios Sociales, creándose un catalogo de planificación social. Las peticiones de un alojamiento flexible para hacer frente a necesidades cambiantes desemboca en unas tipologías de viviendas de gran variedad, comprendidas entre 2 y 4 alturas, algunas se realizan mediante concursos, otras son fruto de subvenciones o subsidios. Asegurando así gran diversidad social de habitantes y evitando la segregación social. Todos los apartamentos de la zona están pensados de manera que sean luminosos y ventilados, que estén bien distribuidos y proporcionados.
Los elementos que dan forma al espacio abierto del distrito son cinco corredores verdes transversales y el bosque de la colina en paralelo a la actuación. Estos constituyen el enlace más importante con el entorno rural adyacente. Aparecen tanto espacios abiertos públicos, como semi-públicos o privados, cerca de las viviendas, ofreciendo numerosos y variados espacios verdes. Los corredores verdes tienen la función de delimitar barrios y a su vez dar conexión a las zonas construidas con los campos. Se ajardinan de diversas formas, dando diferentes usos y contrastando con el entorno.
Hay pocos elementos que identifiquen a simple vista la excepcionalidad del diseño de este distrito, uno de ellos es la ausencia de viviendas aisladas y otro la gran propusión en el diseño y ajardinamiento de los espacios públicos, perdiendose en la mayoria de los casos el límite entre público y privado. Gracias a las construcciones bioclimáticas proyectadas se ha conseguido un reducción del CO2 generado por la calefactación de los edificios, asi como un 60% de ahorro eléctrico.
Fuentes:
Manual de diseño del Distrito de Kronsberg. Geohabitat
Google earth
Texto:
Esther Vidal Bartoll










No hay comentarios:
Publicar un comentario